12.01.2021
4745
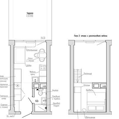
Интерьер небольшой квартиры-студии сочетает в себе современный стиль и элементы азиатского декора (стиля джапанди). Пожелание заказчика: спланировать в двухэтажных апартаментах общей площадью 26 м2 спальное место с мягкой кроватью, зоны кухни и отдыха, два рабочих места, а также вместительные системы хранения.
Джапанди, или Скандинес – это уникальный синтез лучших традиций скандинавского и японского стилей с включением элементов лофта, модерна и других современных стилей. Направление сформировалось в 2019 году и стало настоящим трендом в дизайне интерьера: отличительными особенностями джапанди являются нордическая лаконичность и любовь к природе и теплая японская сдержанность – удивительное соединение двух совершенно разных культур.
Выбор стиля джапанди для декора в данном проекте – не столько следование модным тенденциям, но практический подход к решению задач, поставленных заказчиком. Стиль отвечает самым актуальным требованиям к эстетике и экологичности, позволяет максимально функционально зонировать пространство в помещении малой площади. Так, совместив в себе несовместимое – север и восток, джапанди стал одним из лучших решений для обустройства небольших квартир и студий.
Планировка квартиры
Описание проекта и фото интерьеров
Основные принципы проекта:
- Сдержанная цветовая гамма: белый, синий, бежевый и черный цвета с небольшими вкраплениями красного, желтого, зеленого и бронзового.
- Сочетание разных фактур: от шелковистых стен, покрытых жидкими обоями Art Design 283 и 282 черного и темно-синего цвета, до панелей из ДСП, тонированных в цвет напольного покрытия.
Определяющими для планировочного решения стали уже имеющиеся элементы интерьера:
- полы, отделанные ламинатом;
- выводы под электрические розетки и светильники;
- расположение дверей – входной и стеклянной в санузле;
- конструктив здания.
Общая площадь первого этажа квартиры – 19 м2, к которой добавляется 7 м2 второго. У квартиры есть важные преимущества:
- высокие потолки;
- большое окно;
- выход на террасу площадью 20 м2.
Из минусов – крайне маленький санузел и балки на потолке, которые значительно «съедают» высоту помещения на втором этаже. И именно поэтому работа дизайнера над данным проектом была особенно интересной и творческой.
Прихожая
Во входной зоне квартиры дизайнером реализована вместительная система хранения – она представлена шкафом для одежды, хозяйственным шкафом и зоной, предназначенной для сидения, хранения сезонной обуви и верхней одежды.
Дизайн прихожей выполнен в современном стиле. Стилевые особенности подчеркивает мебель, изготовленная на заказ:
- Гладкие фасады шкафов изготовлены из МДФ синего цвета в минималистичном стиле.
- Шкаф-прихожая с местом для сидения – металлический каркас черного цвета с панелями ДСП.
Напротив шкафов расположен вход в санузел. Для визуального расширения пространства стену было решено сделать зеркальной, а потолок с отделкой из черного металла – обшить плитами ДСП.
Санузел
В санузле осталась типовая планировка, так как было принято решение не менять выводы для сантехнических приборов. Условно помещение можно поделить на три зоны:
- раковина с тумбой и круглым зеркалом напротив двери;
- унитаз и шкаф, маскирующий трубы, слева от двери;
- душевой поддон со стеклянной перегородкой – справа.
В ванной комнате современный стиль джапанди проявляет свои главные преимущества – минималистичность и функциональность, которые особенно востребованы в помещениях малой площади.
Для создания интерьера в ванной комнате использованы следующие материалы:
- шестигранная керамическая плитка белого цвета на полу;
- мозаика с шестигранниками в душевой зоне;
- влагостойкая серая штукатурка Mixart 030 с гладкой фактурой – для отделки стен.
Смесители, полотенцесушители и крючки изготовлены из бронзы, в том числе матовой фактуры. Бронзовый цвет мягко разбавляет нейтральную цветовую гамму интерьера и добавляет в него теплые нотки.
Кухня-гостиная
Дизайн интерьера гостиной в квартире – яркий пример эклектичного джапанди – неожиданное сочетание практичного натурализма современного скандинавского стиля и традиционного японского минимализма.
Основной тон стен — белый. Для отделки использовались мелкофактурные матовые жидкие обои Provence 041. Для сохранения первозданной белизны обои обработаны фирменным защитным покрытием SILK PLASTER.
Кухня в стиле джапанди – это простота и функциональность. Кухонная зона расположена в углу помещения, напротив окна, и не занимает много места. Для ее обустройства использованы следующие элементы:
- угловой кухонный гарнитур с классическими серыми фасадами и черной столешницей;
- кухонный фартук – панель изысканного цвета бронзы;
- растения на навесных шкафах, чтобы подчеркнуть любовь к природе.
Сочетание серой кухни и белых обоев позволяет создать спокойный и стильный интерьер. Тандем серого и белого цветов – удачная основа для создания дизайна небольшой кухни или открытой кухни в квартире-студии в классических или в современных стилях. Серые, белые и черные тона – универсальны и прекрасно сочетаются с другими цветами и различными фактурами. Выбранное решение – кухня средних серых тонов в сочетании с белыми стенами – помогает визуально расширить пространство, а добавление черного и бронзового цветов (столешница и кухонный фартук) придают интерьеру особый лоск и элегантность и создают целостный образ. Зеленые растения дополнительно "оживляют" цветовую гамму.
Рядом с зоной кухни, ближе к окну – обеденная зона, включающая небольшой стол с деревянной круглой столешницей и черные раскладные стулья. Эргономичность и предпочтение натуральным материалам – важные критерии, которые необходимо учитывать при подборе мебели для интерьера в японском стиле. Плазменный телевизор на стене завершает композицию, добавляя ей современности.
Широкое окно – рядом с обеденной зоной и напротив зоны кухни – основной источник естественного освещения в помещении. Окно приобрело кардинально новый вид:
- Белая рама окна с внутренней стороны перекрашена в черный цвет.
- Стандартные ручки заменены на фурнитуру бронзового цвета.
- Подоконник заменен на столешницу из массива дерева.
Для отделки стены с окном использованы жидкие обои черного цвета Art Design 283. Белый радиатор уступил место более крупному и производительному черному. По бокам от окна – полосы из плит ДСП, которые скрывают выступающие фрагменты стены и гармонично сочетаются с черно-белым декором.
Черные окна (рамы) в белом или светлом интерьере – тенденция, стремительно набирающая популярность в современном дизайне. Этот прием позволяет сделать оконный проем законченным элементом интерьера, не требующим дополнительного оформления шторами или жалюзи. Черные окна – достаточно смелое решение, которое, при правильном подходе, придаст интерьеру строгой элитарности. В то же время, чтобы помещение не получилось холодным и мрачным, не рекомендуется использовать черные рамы в интерьерах комнат со слабым освещением, для маленьких окон, а также в помещениях со стенами насыщенных темных цветов.
Бронзовые акценты (оконная фурнитура, кухонный фартук) – привносят в строгий скандинавский интерьер проекта нотки японской элегантности, тепла и спокойной размеренности. Сочность цвета бронзы и его благородный металлический блеск делают интерьер более дорогим.
У подоконника вместо стула расположился низкий пуф с отверстием для журналов и книг, который также служит журнальным столиком. На него можно будет ставить поднос с чаем и закусками во время просмотра телевизора. Плетеный пуф – один из примеров, иллюстрирующих практическое применение в интерьере элементов в стиле джапанди, сочетающего японские этнические черты и европейскую функциональность.
Рядом с окном установлен диван синего цвета с декоративными цветными подушками, который служит акцентом в этом интерьере. Диван оснащен раскладным механизмом и может служить местом для сна или отдыха гостей.
Синий диван в интерьере гостиной – тренд интерьерного дизайна, не теряющий актуальности в течение последних нескольких лет. Популярность синего цвета объясняется его благотворным влиянием на психологическое состояние человека: интерьер гостиной, выполненный в синих тонах, благоприятствует снятию усталости и нервного напряжения, дарит ощущение спокойствия и внутренней гармонии. Синий цвет в спальне способствует нормализации артериального давления и здоровому сну.
Кроме того, синий диван и другие предметы мебели, а также декор, текстиль и любые значимые акценты, выполненные в синих тонах, придают интерьеру удивительную глубину, подчеркивают тонкий вкус, статусность и благородство его владельца. Однако этот цвет необходимо использовать умеренно, поскольку переизбыток синего может вызывать чувства одиночества, уныния и тревоги.
Стену над диваном украшает постер в японском стиле с изображенным на нем котом-самураем, только что закончившим свой обед. Картины в японском стиле отличаются особой изысканностью и утонченностью, привносят в интерьер нежные полутона и аккуратные вкрапления ярких красок, создавая атмосферу умиротворенности, характерную для традиционного азиатского быта.
Японский стиль по праву заслужил признание дизайнеров и занимает почетное место в дизайне интерьера благодаря своей удивительной способности создавать свободное, не давящее пространство, наполненное этнической таинственностью. Интерьер в японском стиле одновременно успокаивает и заряжает особой жизненной энергией.
Слева от дивана – деревянная лестница на второй этаж. Изначально она была раскладной и шаткой. Вместо нее установлена стационарная конструкция, под которой разместились встроенные шкафы прихожей. Оригинальный вид лестницы достигается за счет аутентичного оформления:
- балясины из бечевки;
- перила из деревянных реек;
- гирлянда на стене вдоль лестницы из круглых бумажных светильников, выполняющая роль вечернего освещения.
Основным источником света являются две потолочные люстры с бумажными абажурами в японском стиле.
Спальня
Спальня, выполненная в минималистичном современном стиле, расположена на втором этаже. При площади всего 7 м2 спальня является не только местом для отдыха, но и рабочим кабинетом.
В качестве напольного покрытия дизайнером выбран ковролин цвета графит. Акцентами в интерьере спальни служит современная отделка стен в синих и белых тонах, реализованная с использованием следующих материалов:
- белые жидкие обои Provence 041 с мелкорельефной матовой фактурой;
- синие жидкие обои Art Design 282 с гладкой шелковистой фактурой;
- плиты ДСП.
Важно правильно подобрать сочетание синего с другими цветами и фактурами в интерьере комнаты. Наиболее гармоничным для гостиной и спальни сочетанием является сине-белый интерьер, а также решение в сине-серо-белых тонах. Синий прекрасно сочетается с нейтральным бежевым и светлыми оттенками дерева, в качестве акцентов уместно использовать красный и различные оттенки желтого (песочный, коралловый, золотой).
Центром спальни является кровать с мягким каркасом и изголовьем, закрепленным к стене, для удобного чтения в положении сидя. Материал обивки – ткань рогожка серого цвета. Для освещения комнаты вместо бра используются гирлянда и торшер из IKEA в японском стиле.
Компактная система хранения представлена шкафом для одежды и книжными полками около кровати. Рядом с лестницей – круглое зеркало в черной раме, а под ним – откидной столик. Это одновременно и косметический, и рабочий стол.
Напротив рабочего места – визитная карточка интерьера в стиле джапанди: постер с тем же японским котом. Но, в отличие от гостиной, на этой картине он сладко спит в окружении рыб и мышей.
Реализуйте оригинальные идеи вместе с SILK PLASTER
Современный интерьер в стиле джапанди сочетает в себе стремление к экологичности, простоту и функциональность – общие черты для скандинавского и японского направлений. Именно поэтому такие разные стили, родившиеся на противоположных концах материка, объединились и преобразовались в столь гармоничное и уютное интерьерное решение, пользующееся неизменной популярностью и сегодня.
Если вам близки утонченность и легкая недосказанность японского стиля, если вам подходит скандинавская сдержанность и натуральность фактур – с жидкими обоями и декоративными штукатурками SILK PLASTER вы сможете воплотить в жизнь вашу идею. Это экологически чистые материалы с широким разнообразием оттенков и текстур – ознакомиться с ассортиментом и приобрести продукцию SILK PLASTER вы можете в интернет-магазине и в фирменных шоурумах вашего города.
Студия интерьера SILK PLASTER поможет вам в создании индивидуального дизайн-проекта с использованием жидких обоев и декоративных штукатурок.

